يُعد مجفف الأسطوانة الدوارة من المعدات الحيوية التي تُستخدم على نطاق واسع في العديد من الصناعات، مثل الأسمنت، والتعدين، والبناء، والصناعات الكيميائية والغذائية، وكذلك في صناعة الأسمدة.
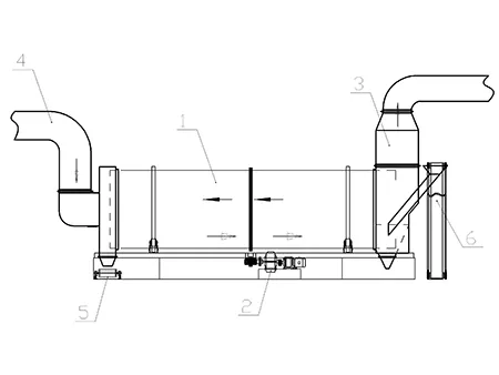
يتكون المجفف ذو الأسطوانة الدوارة من أسطوانة أسطوانية الشكل، وريش داخلية لرفع المواد، وجهاز نقل حركة، ووحدات دعم، بالإضافة إلى غطاء محكم الإغلاق. كما يحتوي على فتحة إدخال للمواد ومنفذ إخراج، مزودين بمزدوجات حرارية تتيح مراقبة دقيقة لتغيرات درجات الحرارة عند طرفي المجفف.
| قياس الأسطوانة (م) | الطاقة الإنتاجية (طن/ ساعة) | القدرة (كيلو وات) | موديل المحرك | موديل المخفض | النسبة | الوزن (طن) |
| Ø1×10m | 0.5-1 | 5.5 | Y132M2-6 | ZL400- Ⅱ | 25 | 10.5 |
| Ø1.2×10m | 1-2 | 7.5 | Y160M-6 | ZL500-I | 25 | 13.5 |
| Ø1.5×12m | 2-5 | 11 | Y160L-6 | JZQ500-Ⅲ | 25 | 18.9 |
| Ø1.5×15m | 4-6 | 15 | Y180L-6 | JZQ500-Ⅲ | 25 | 21 |
| Ø1.8×12m | 5-8 | 18.5 | Y200L1-6 | ZQ50-16Ⅱ | 16.46 | 22.83 |
| Ø2.2×12m | 6-10 | 18.5 | Y200L1-6 | JZQ650-Ⅲ | 31.5 | 37.6 |
| Ø2.2×14m | 7-12 | 18.5 | Y200L1-6 | JZQ650-Ⅲ | 31.5 | 40 |
| Ø2.2×16m | 9-14 | 30 | Y225M-6 | JZQ750-Ⅲ | 31.5 | 45 |
| Ø2.4×14m | 10-16 | 30 | Y250M-6 | JZQ750-Ⅲ | 31.5 | 51 |
| Ø2.4×18m | 12-18 | 37 | Y250M-6 | ZL85-13-I | 27.16 | 54 |
| Ø2.4×20m | 14-22 | 37 | Y250N-6 | ZL85-13-I | 27.16 | 54.14 |
| Ø3×20m | 16-25 | 55 | Y250M-4 | ZL100-16-I | 41.52 | 78 |
| Ø3×25m | 32-36 | 75 | YR280M-4 | ZL100-16-I | 41.52 | 104.9 |
تُصنع الأسطوانة من فولاذQ235، مع إمكانية تخصيص البطانة الداخلية لتكون من الفولاذ المقاوم للصدأ حسب الطلب.
يعتمد المجفف في تشغيله على مصدر حراري ناتج عن وحدة احتراق. ويستخدم نظام تسخين بالتيار العكسي، حيث يدخل الهواء الساخن من جهة مخرج المواد، بينما تدخل المادة المراد تجفيفها من صندوق التغذية إلى داخل الأسطوانة المائلة الدوارة. كما تعمل رافعة حلزونية على دفع المادة نحو الطرف الخلفي للأسطوانة، وخلال دوران الأسطوانة، تتقلب المادة باستمرار وتُرفع وتُسقط مراراً بواسطة الريش الداخلية. ولذا، تُتيح هذه الحركة تلامساً كاملاً وفعالاً بين المادة والهواء الساخن، مما يضمن تبادلاً حرارياً كافياً وتجفيفاً تدريجياً للرطوبة الموجودة في المادة.




فريق الخبراء لدينا مستعد للإجابة على جميع تساؤلاتك المتعلقة بمعدات خطوط إنتاج الأسمدة ومساعدتك في العثور على الحل الأمثل.
تمر المواد الخام المختلفة للأسمدة بسلسلة متكاملة من العمليات تشمل التغذية، التكسير، الخلط، النقل، التكوّر (التلكر)، التجفيف، التبريد، الفرز، الطلاء، والتعبئة، لضمان إنتاج منتج نهائي عالي الجودة وكفاءة تشغيلية متميزة.
تُضبط درجات الحرارة القياسية عادةً على نحو تقريبي بـ 600 درجة مئوية عند مدخل الأسطوانة، وما بين 80 إلى 120 درجة مئوية عند المخرج، وذلك لضمان تجفيف فعّال دون الإضرار بالمواد.
نعم، السماد عالي الملوحة أو المعرض للتكتل قد يلتصق بجدران الأسطوانة أثناء عملية التجفيف.
ولمواجهة هذه المشكلة، نعتمد على تصميم مزيج من الريش الرافعة بشكل متدرج/حلزوني إلى جانب جهاز اهتزاز عالي التردد، مما يمنع تراكم المواد على الجدران الداخلية ويحافظ على كفاءة التشغيل.